
Villa AS
août 16, 2024
Appartement des thermes
août 16, 2024Boutique Fei

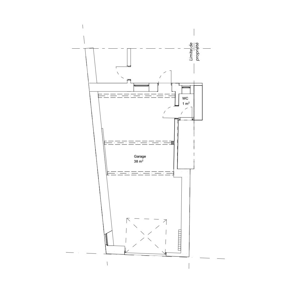
Transformation d'un garage en atelier-boutique à Châtel-Guyon
Typologie : Commerce
Projet : Changement de destination
Localisation : Châtel - Guyon
Surface : 130 m2
Année : 2023
Ce projet concerne la transformation d’un garage en un atelier-boutique de couture. L'enjeu principal était de faire entrer un programme chargé dans un petit espace. La propriétaire souhaitait disposer d'un espace boutique-essayage, d'un atelier, d'un bureau et d'un lieu de pause.
Optimisation de l'espace
La porte de garage a été transformée en vitrine, permettant d'augmenter la visibilité et l'attrait de la boutique. Les ouvertures, initialement peu nombreuses, ont été augmentées pour apporter plus de lumière naturelle. Afin d'éclairer le centre, où se situe l'atelier, des verrières ont été installées de part et d’autre, assurant une lumière homogène grâce à l'éclairage artificiel.
Conformité et intégration patrimoniale
La complexité du projet résidait dans les contraintes patrimoniales de la façade. Cette dernière devait s’intégrer harmonieusement avec les autres boutiques de Châtel-Guyon, tout en respectant des exigences strictes. La façade rouge rappelle les couleurs de l’enseigne de la créatrice, pour une identité visuelle forte et cohérente.



